Twelve Houses
Jury’s statement - Twelve Houses:
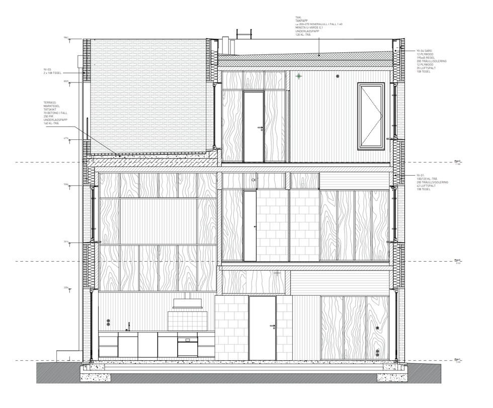
Sensitivity is the first word that comes to mind. To the site, to the environment, to people, to history, to brick – and to wood! But perhaps above all to the brief. Combining the roles of architect, developer and turnkey contractor has knitted together an unfussy brick architecture that is steeped in people’s lives, along with a wooden interior full of vibrancy, warmth, spatialities and views both in and out.

